Moshu Treehouse

/ Gastronomico

2020-2022

Guatemala 4570, Buenos Aires.
Ver planos >>
Colaboradores

Arq. Fernando Hitzig
Arq. Leonardo Militello

Concept design:
Arq. Vanik Margossian
Arq. Dolores Gayoso
Documentación de obra:
Arq. Vanik Margossian
Dirección de obra:
Arq. Marcela Bernat/ Arq. Vanik Margossian

Programa

resturante & pasteleria

Superficie

Cubiertos 240 m2
Descubiertos 90m2

Renders

Juan Ignacio Rosales

Fotografia

Federico Kulekdjian

Servicios contratados

DC

Diseño conceptual & Arte

HMA Arquitectos

PA

Proyecto
arquitectónico

HMA Arquitectos

DE

Documentación
ejecutiva de obra

HMA Arquitectos

DO

Dirección de obra

HMA Arquitectos

Memoria descriptiva

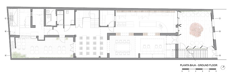
El proyecto esta desarrollado en una casa antigua del barrio de Palermo. Se realizo una completa reorganización del espacio generando dos accesos a dos espacios de diferentes usos que se complementan según el horario del funcionamiento del restaurante.

Teniendo en cuenta la historia de las antiguas casas de Buenos Aires, los patios siempre han sido un espacio de congregación. Por lo que la primer gran estrategia de diseño fue crear un patio de acceso inmediatamente después de la fachada somo símbolo y golpe de efecto. Esto permitió contar con una nueva fachada de lenguaje propio, y como consecuencia preservar el estilo antiguo de la fachada principal. Desde el punto de vista del funcionamiento, el patio es fundamental para al modelo take away y además explora exterior un uso post covid.

El lenguaje propuesto fue resultado de un análisis profundo sobre los elementos que definen a la propuesta gastronómica, propuesta que se jacta de un tipo de pastelería americana. De ahí la referencia a la antigua forma de «enfriar el pastel junto a la ventana» y su corolaria propuesta de utilizar múltiples ventanas en la fachada del patio de entrada.

Otro elemento determinante ha sido la representación abstracta de las tortas construido por cilindros de cartón, como sistema de “pieles” que revisten determinadas áreas como los arcos de entrada y el back de barra, sitio que atrae todas las miradas en el proceso de compra.

Estos «pasteles o tartas» también incluyen dos símbolos tradicionales de la pastelería, el colador y los batidores, ambos elementos los condensamos en una única pieza como símbolo.

El lenguaje de la arquitectura interior es una composición vernácula del típico estilo industrial derruido. De esta palabra “derruido” partió la idea de utilizar elementos que simulen un ámbito “under construction”, es decir, maderas de andamios, hierros de obra, tejidos metálicos. Todos materiales neutros que componen un universo de tamices constructivos y de fondo una casa derruida donde la vegetación seca toma posesión de una casa antigua que pareciera estar en un estado de abandono.

La iluminación se ha convertido en un elemento distintivo construido con soportes de estructura de madera y rodeado de vegetación seca, como un acto poético de cómo la vegetación puede tomar una estructura de andamiaje de madera abandonada.

En el primer piso, atravesando las simbólicas ventanas de madera y una gran vegetación que trepara por las mismas, encontramos un salón privado donde la alta coctelería toma presencia. Emulamos a través del simbólico árbol Lagerstroemia en el centro del patio y el uso de madera en torno al patio la idea de la casa en el arbol. De ahí su nombre Moshu treehouse.

Publicación de obra

/ Nacional e internacional