Colaboradores
Arq. Fernando Hitzig
Arq. Leonardo Militello
Arq. Jerónimo Blanco Pepi
Arq. Sofía Kesting
Arq. Victoria Repetur
Arq. Camila Lacarpia
Arq. Victoria Nabias
Arq. Ana Russo
Arq. Tomás Levi Daniel
Arq. Micaela Broggi
Arq. Julieta Bonantini
Arq. Abril Pavia
Arq. Lucía Rodríguez Olivieri
Arq. Olivia Lenkiewicz
Arq. Florencia Baserga
Arq. Gabriela Zarwanitzer
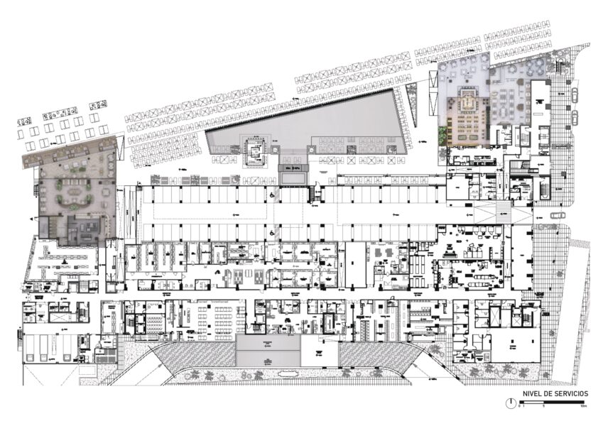
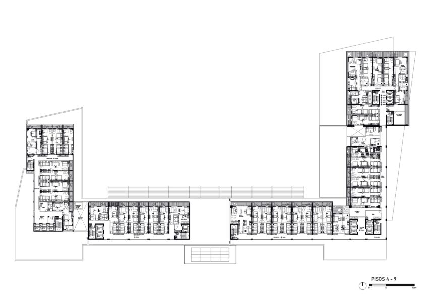
Programa
Intervención general interior: areas comunes, habitaciones, gastronand exteriors.
Superficie
50000 m2









































