Collaborators
Arch. Fernando Hitzig
Arch. Leonardo Militello
Arch. Sofía Kesting
Arch. Jerónimo Blanco Pepi
Arch. Victoria Repetur
Arch. Camila Lacarpia
Arch. Victoria Nabias
Arch. Ana Russo
Arch. Tomás Levi Daniel
Micaela Broggi
Arch. Julieta Bonantini
Arch. Abril Pavia
Arch. Lucía Rodríguez Olivieri
Arch. Olivia Lenkiewicz
Arch. Florencia Baserga
Arch. Gabriela Zarwanitzer
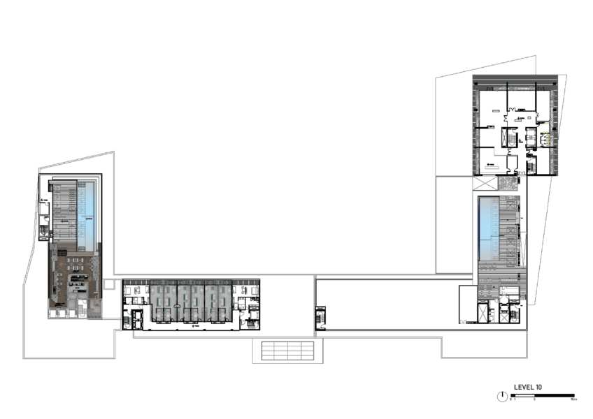
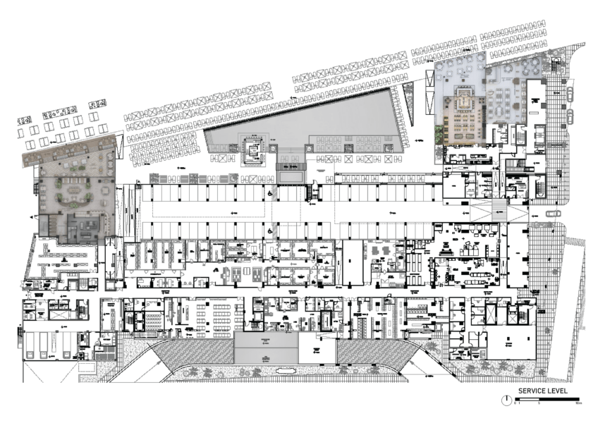
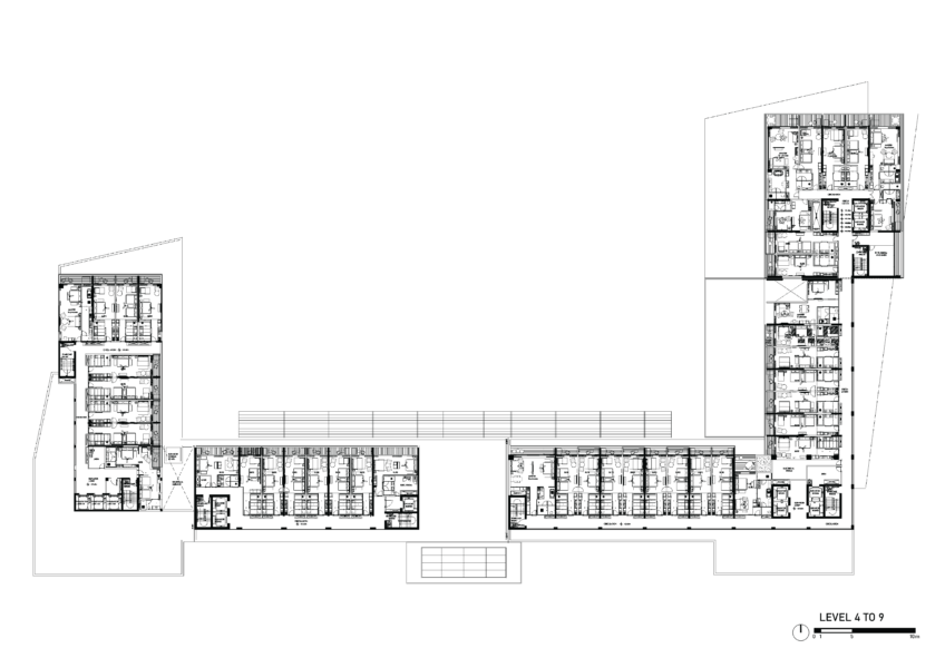
Program
Interior general intervention: common areas, rooms, gastronomy and exteriors.
Area
530000sqft
