Cafetería Osten – Casa FOA

/ Gastronomico

2025

Madero Harbour, Juana Manso 1980, CABA
Ver planos >>
Colaboradores

Arq. Fernando Hitzig
Arq. Leonardo Militello

Equipo:
Arq. Sofía Kesting
Arq. Camila Lacarpia
Arq. Vicente Abello Pueyo
Arq. Milagros Rivelli
Arq. Victoria Nabias
Arq. Julieta Leibovich
Alejandro Llerena

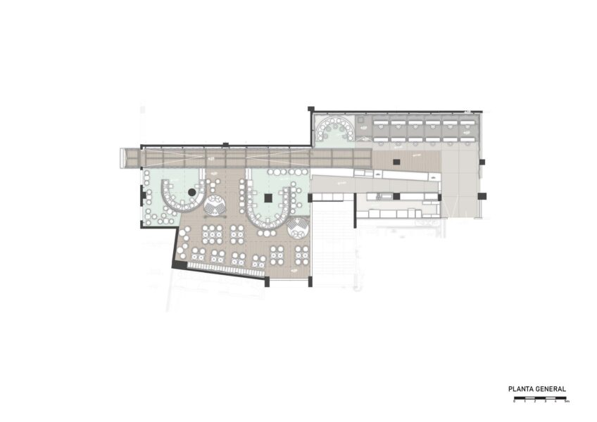
Programa

Cafetería

Superficie

325 m2

Proveedores

Acontec SRL

Fotografia

Uchimay fotos

Servicios Contratados

DC

Diseño conceptual
y esquemático

HMA Arquitectos

PA

Proyecto
arquitectónico

HMA Arquitectos

DE

Documentación
ejecutiva de obra

HMA Arquitectos

Memoria descriptiva

El complejo Madero Harbour se emplaza con protagonismo en el enclave de Puerto Madero, ese territorio en que la ciudad se refleja sobre el agua y lo natural tensiona con lo artificial. El concepto de margen, de borde, de límite en que la traza urbana producto de la cultura colisiona con la inmensidad natural del río se convierte en el punto de partida del proyecto que invita a repensar la arquitectura como una contradicción compleja y estimulante por el choque entre los opuestos.

De allí surge la propuesta: dos espacios que encarnan la dualidad entre, por un lado, el orden racionalista (minimalismo) y por otro la exaltación sensorial (maximalismo). La grilla Miesiana ofrece un marco conceptual: organiza la planta mediante ejes axiales afectando al resto de los elementos que proponen diferentes situaciones de uso.

El proyecto emerge entonces como un territorio de dualidades y conflictos. Es un minimalismo maximizado, es lo contemporáneo y lo moderno; con placas pétreas rectas disgregados y las curvas hiper texturizadas, una vegetación dinámica integrada, pero a la vez estática y enmarcada. Sus neutrales tonalidades equilibran la expresividad de sus materiales, y sus contradicciones, en definitiva, invitan a la provocación de una experiencia.

Publicación de obra

/ Nacional e internacional

La Nación

Argentina
Octubre 2025

Clarin ARQ

Argentina
Octubre 2025

ParaTi Deco

Argentina
Octubre 2025