Osten Coffee Shop – Casa FOA

/ Food & beverage

2025

Madero Harbour, Juana Manso 1980, CABA
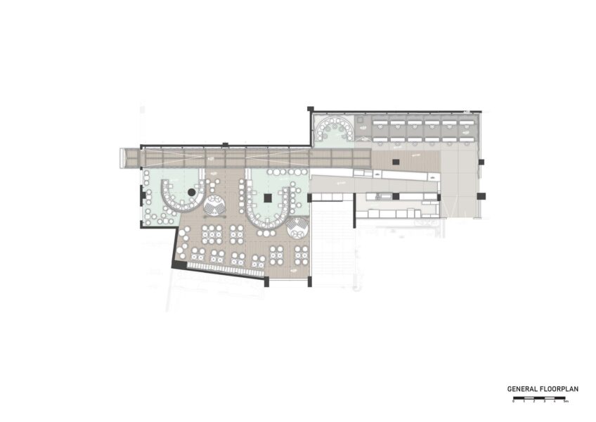
See plans >>
Collaborators

Arch. Fernando Hitzig
Arch. Leonardo Militello

Team:
Arch. Sofía Kesting
Arch. Camila Lacarpia
Arch. Vicente Abello Pueyo
Arch. Milagros Rivelli
Arch. Victoria Nabias
Arch. Julieta Leibovich
Alejandro Llerena

Program

Coffee Shop

Area

3500sqft

Suppliers

Acontec SRL

Photography

Uchimay fotos

Services

CD

Conceptual Design

HMA Arquitectos

DD

Design Development

HMA Arquitectos

CD

Construction Documents & Managment

HMA Arquitectos

Abstract

The Madero Harbour complex is prominently located in the enclave of Puerto Madero, a territory where the city is reflected on the water and the natural world clashes with the artificial. The concept of margin, edge, boundary where the urban layout resulting from culture collides with the natural immensity of the river becomes the starting point of the project, which invites us to rethink architecture as a complex and stimulating contradiction due to the clash between opposites.

Hence the proposal: two spaces that embody the duality between, on the one hand, rationalist order (minimalism) and on the other, sensory exaltation (maximalism). The Miesian grid offers a conceptual framework: it organizes the floor plan through axial axes, affecting the rest of the elements that propose different usage situations.

The project then emerges as a territory of dualities and conflicts. It is a maximized minimalism, it is the contemporary and the modern; with straight, disjointed stone slabs and hyper-textured curves, a dynamic vegetation that is integrated, but at the same time static and framed. Its neutral tones balance the expressiveness of its materials, and its contradictions, ultimately, invite the provocation of an experience.

Work Publication

/ National and international

La Nación

Argentina
October 2025

Clarin ARQ

Argentina
October 2025